
agence preladepuis 2009
Dessinatrice en bâtiment - Architecture intérieure Véronique Mazeau
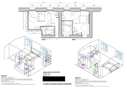
Visualisation & supports de projet ... Je vous aide à vous projeter grâce à des outils visuels clairs et immersifs : Modélisation 3D des volumes, matériaux, couleurs et textures, Simulation d’éclairage naturel et artificiel selon votre localisation... -Les outils numériques accélèrent et clarifient. L'expertise humaine décide et sécurise.-
Technique & administratif ... Je vous accompagne dans la conception et l’organisation de vos espaces : Analyse préalable et recommandations sur mesure, organisation des zones selon votre mode de vie, disposition du mobilier, luminaires et éléments, base de calcul pour les artisans, pièce graphique pour l'administration, Recommandation des matériaux ,etc
Les collaborations & avant/après Une fois le projet défini, chiffré, artisans sélectionnés , voici quelques exemples . Le projet ficelé,les travaux peuvent commencer! BiG UP pour le coordinateur & les artisans















































